















10月完成リノベーション物件!
渋谷・新宿・横浜などのターミナル駅にアクセス良好なことに加えて、
コンビニ・スーパー・ドラッグストアが徒歩10分圏内のため、生活しやすい住環境です!
ペット飼育可能でセキュリティと共用施設が充実しています。
(共用施設:ゲストルーム・スタディルーム・集会室)
~リノベーション内容~
■壁・天井クロス新規交換
■フローリング新規交換
■建具・下足入れ新規交換
■システムキッチン新規交換
■照明器具新規交換
■カーテンレール新規交換
■スイッチ・コンセント新規交換
■トイレ(手洗・ウォシュレット付)新規交換
■ユニットバス新規交換
■洗面台新規交換
■浴室乾燥機新規交換
■防水パン新規交換
■洗濯水栓新規交換
■給湯器新規交換
■分電盤新規交換
■収納新規交換
| 物件名 | レクシオ宮前平ヒルズ | 交 通 |
東急田園都市線 「宮前平駅」
徒歩17分
|
|---|---|---|---|
| 所在地 | 神奈川県川崎市宮前区土橋6-14-8 | 在階/階数 | 5階/10階建 |
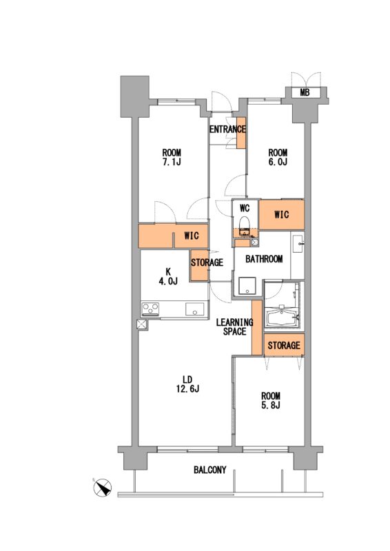
| 間取り | 3LDK | 専有面積 | 85.75㎡ |
| バルコニー | 11.05㎡ | 建物構造 | 鉄筋コンクリート造 |
| 総戸数 | 123戸 | 築年月 | 2003年07月 |
| 価格 | 4,990 万円(税込) | 共益費/管理費 | 7,700円(月額) |
| 修繕積立金 | 16,720円(月額) | 現況 | 空室 |
| 敷地内駐車場 | 有 | 向き | 南西 |
| 土地権利 | 所有権 | 引渡 | 相談 |
| 建物種別 | リノベーションマンション | 取引態様 | 売主 |
| 分譲会社 | レクシオ | 施工会社 | 長谷工コーポレーション |
| 管理会社 | 東急コミュニティー | 用途地域 | 第一種中高層住居専用地域/第一種住居地域 |
| 管理形態 | 全部委託 | 更新日 | 2025/11/15 |